55 Market Street Office Building
55 Market Street entrance

55 Market Street

55 Market St, Singapore 048941

Strategically located along Market Street and directly opposite CapitaSpring, 55 Market Street stands in the centre of Singapore’s most prestigious business hub — Raffles Place. This historic district, long associated with global trade and commerce, continues to be the epicentre of Southeast Asia’s financial and corporate landscape.

Following a comprehensive asset enhancement programme, 55 Market Street now boasts a striking new grand lobby, alongside a state-of-the-art office show suite that blends wellness, smart technology, and sustainability. Rather than rebuild from scratch, the enhancement preserved the building’s strong structural foundation — a more environmentally conscious choice with significantly lower carbon impact.

Why Choose 55 Market Street

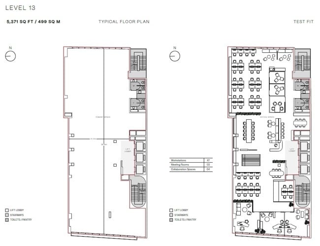
  • Efficient column-free floor plates
    Typical floor size: approx. 5,300 sqft

  • Exclusive penthouse option
    Two-storey penthouse with private terraces
    Option to connect via spiral staircase (subject to approval)
    Combined area: 8,180 sqft

  • Prime connectivity
    Fully sheltered access to Raffles Place MRT

  • Sustainability certified
    BCA Green Mark Gold rating

  • Smart & secure environment
    Touchless entry systems
    Advanced security features
    Japanese engineering and infrastructure

  • Brand visibility
    Customised branding and signage opportunities

55 Market Street redefines the modern office experience — combining location, performance, and innovation in a single address.

55 Market Street Offices For Rent

Office sizes available range from 5,300sqft per floor plate.

55 Market Street Typical Office Floor Plan

accessibility & location

neighbourhood

Raffles Place is at the heart of the Central Business District (CBD) in Singapore. Major businesses choose to be located here, as it brings them closer to the pulse of business activity in Singapore. Some of the tallest commercial buildings and landmarks of the city are located in this district. The density of the working crowd created a vibrant night scene around the area, with numerous bars, pubs and restaurants integrated in the office buildings and along the nearby shophouse areas.

Raffles Place is well connected via both the East West MRT Line and the North South MRT Line. Retail malls, restaurants, cafes, bars and various amenities such as gyms and banks are also located in the area to cater to the working crowd.

Schedule your Viewing

Share your requirements and we’ll arrange a suitable viewing shortly.

Related Projects
Contact Us

We will love to hear from you! Drop us a note and we will get back to you!

error: Content is protected !!